Nachhaltige Wohnanlage mit stabilen Cashflow in Feldkirch-Tisis
Objekt-Art
Wohnanlagen
Ort
6800 Feldkirch
Wohnfläche
596,71 m²
Grundstücksfläche
1.186 m²
Kaufpreis
€ 3.890.000,--
Neuwertige Kleinwohnanlage | Baujahr 2018 | komplett vermietet
Diese neuwertige Wohnanlage mit nur acht Wohneinheiten befindet sich in absoluter Bestlage von Feldkirch-Tisis, ruhig gelegen in einer Sackgasse und gleichzeitig hervorragend angebunden. Das Objekt überzeugt durch nachhaltige Vermietbarkeit, stabile Mieteinnahmen und ausgezeichnete Energiekennzahlen – ideale Voraussetzungen für eine langfristig sichere Kapitalanlage.
Objektübersicht
Baujahr: 2018
Anzahl Wohneinheiten: 8
Wohnungsgrößen: ca. 54 m² bis 129 m²
Wohnungstypen: überwiegend 3-Zimmer-Wohnungen
Besonderheit: hochwertiges und repräsentatives Penthouse mit ca. 129 m² Wohnfläche, mit 4 Zimmern
Außenflächen: Gärten im Erdgeschoss, großzügige Terrassen im Penthouse
Tiefgarage & Keller: vorhanden
Zustand: neuwertig / sehr gepflegt
Übersicht Wohneinheiten:
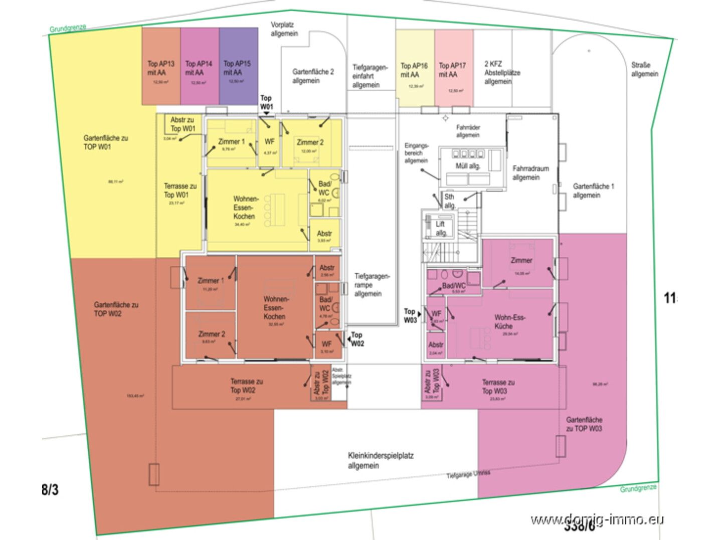
Erdgeschoss (mit Garten):
TOP 1 | 3 Zimmer | 70,48 m² | 88,11 m² Garten
TOP 2 | 3 Zimmer | 63,82 m² | 153,45 m² Garten
TOP 3 | 2 Zimmer | 53,79 m² | 98,28 m² Garten
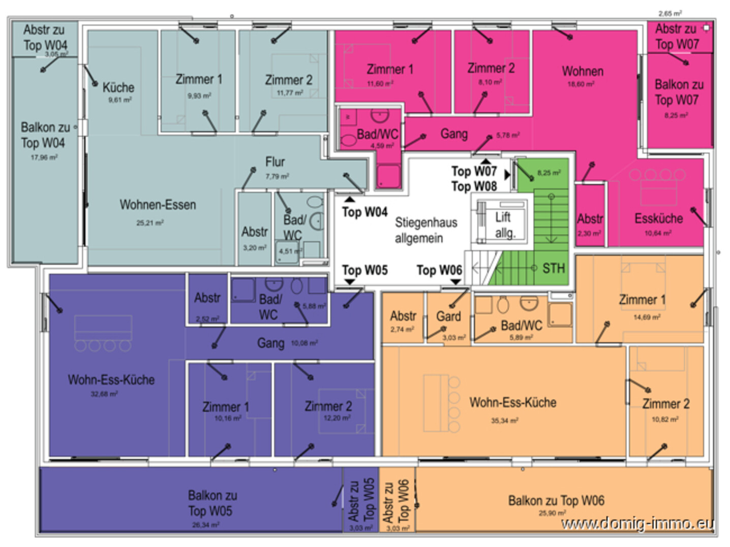
Obergeschoss:
TOP 4 | 3 Zimmer | 72,02 m²
TOP 5 | 3 Zimmer | 73,52 m²
TOP 6 | 3 Zimmer | 72,51 m²
TOP 7 | 3 Zimmer | 61,61 m²
Penthouse:
TOP 8 | 4 Zimmer | 128,96 m²
Zusatzerträge (extern vermietet):
1 Tiefgaragenplatz
3 Lager
Stabile Vermietung, marktgerechte Mietpreise und eine gefragte Wohnungsstruktur gewährleisten hohe Auslastung und geringe Fluktuation.
Ideal für Investoren, die auf stabile Cashflows, langfristige Vermietbarkeit und nachhaltige Substanz setzen.
Sie wären endlich Alleineigentümer, keine lästigen Eigenümerversammlungen an unterschiedlichen Adressen im Land.
Energieausweis (HWB-Wert) = 38 kWh/m²a (B) | (fGEE) = A++ 0,48
Diese neuwertige Wohnanlage mit nur acht Wohneinheiten befindet sich in absoluter Bestlage von Feldkirch-Tisis, ruhig gelegen in einer Sackgasse und gleichzeitig hervorragend angebunden. Das Objekt überzeugt durch nachhaltige Vermietbarkeit, stabile Mieteinnahmen und ausgezeichnete Energiekennzahlen – ideale Voraussetzungen für eine langfristig sichere Kapitalanlage.
Objektübersicht
Baujahr: 2018
Anzahl Wohneinheiten: 8
Wohnungsgrößen: ca. 54 m² bis 129 m²
Wohnungstypen: überwiegend 3-Zimmer-Wohnungen
Besonderheit: hochwertiges und repräsentatives Penthouse mit ca. 129 m² Wohnfläche, mit 4 Zimmern
Außenflächen: Gärten im Erdgeschoss, großzügige Terrassen im Penthouse
Tiefgarage & Keller: vorhanden
Zustand: neuwertig / sehr gepflegt
Übersicht Wohneinheiten:
Erdgeschoss (mit Garten):
TOP 1 | 3 Zimmer | 70,48 m² | 88,11 m² Garten
TOP 2 | 3 Zimmer | 63,82 m² | 153,45 m² Garten
TOP 3 | 2 Zimmer | 53,79 m² | 98,28 m² Garten
Obergeschoss:
TOP 4 | 3 Zimmer | 72,02 m²
TOP 5 | 3 Zimmer | 73,52 m²
TOP 6 | 3 Zimmer | 72,51 m²
TOP 7 | 3 Zimmer | 61,61 m²
Penthouse:
TOP 8 | 4 Zimmer | 128,96 m²
Zusatzerträge (extern vermietet):
1 Tiefgaragenplatz
3 Lager
Stabile Vermietung, marktgerechte Mietpreise und eine gefragte Wohnungsstruktur gewährleisten hohe Auslastung und geringe Fluktuation.
Ideal für Investoren, die auf stabile Cashflows, langfristige Vermietbarkeit und nachhaltige Substanz setzen.
Sie wären endlich Alleineigentümer, keine lästigen Eigenümerversammlungen an unterschiedlichen Adressen im Land.
Energieausweis (HWB-Wert) = 38 kWh/m²a (B) | (fGEE) = A++ 0,48
Objekt-Nummer |
1667 |
Objekt-Art |
Wohnanlagen |
Objekt-Art |
Wohnanlagen |
Nutzungsart |
Wohnen |
Vermarktungsart |
Kauf |
Kaufpreis |
€ 3.890.000,-- |
Aussen Courtage |
3,5% Grunderwerbssteuer
1,1% Grundbucheintragung 1,2% Vertragskosten 3,6% Maklerhonorar inkl. MwSt. |
Kaufpreis pro m² |
€ 6.607,33 |
Währung |
EUR |
Stellplätze |
12 Tiefgaragenplätze
5 Aussenstellplätze |
Wohnfläche |
596,71 m² |
Terrassenfläche |
212,79 m² |
Grundstücksfläche |
1.186 m² |
Widmung |
BW | Bauwohngebiet |
Baujahr |
2018 |
Energieausweis |
|
Gebäudeart |
Wohn |
HWB-Wert |
38.00 kWh/m²a |
HWB-Klasse |
B |
FGEE-Wert |
0.48 |
FGEE-Klasse |
A++ |
Heizungsart |
Fussbodenheizung |
Befeuerung |
Gas |
Stellplatzart |
Tiefgarage, Freiplatz |
Fahrstuhl |
Personenaufzug |
Beschreibung |
Diese Kleinwohnanlage vereint neuwertige Bausubstanz, exzellente Energieeffizienz, attraktive Mieterträge und eine erstklassige Mikrolage. Aufgrund der überschaubaren Einheitenzahl, der hochwertigen Ausführung und des außergewöhnlichen Penthouses handelt es sich um ein seltenes Anlageobjekt mit hoher Wertbeständigkeit. |
Heizungsart |
Fußbodenheizung |
Befeuerung |
Gas |
Verfügbarkeit |
ab sofort |
Extras |
3 Wohnungen im EG
4 Wohnungen im OG 1 Penthouse Wohnung im DG |























































