Wohnanlage mit 6 Wohnungen und 1.000m² Grundstück in der Ferienregion Vandans / Montafon!
Objekt-Art
Mehrfamilienhaus
Ort
6773 Vandans
Wohnfläche
380,96 m²
Grundstücksfläche
1.000 m²
Kaufpreis
auf Anfrage
Zum Verkauf steht eine Wohnanlage mit 6 Wohneinheiten, die derzeit alle vermietet sind.
Das Gebäude ca. 1996 in Massivbauweise errichtet und verfügt im Kellergeschoss über großzügige Räume und 2 große Doppelgaragen für bis zu vier PKW's.
Kellergeschoss: ca. 130 m²
2 Doppelgaragen (4 PKW): ca. 57,20 m²
Wohnung Top 6 im Kellergeschoss: ca. 47,22 m²
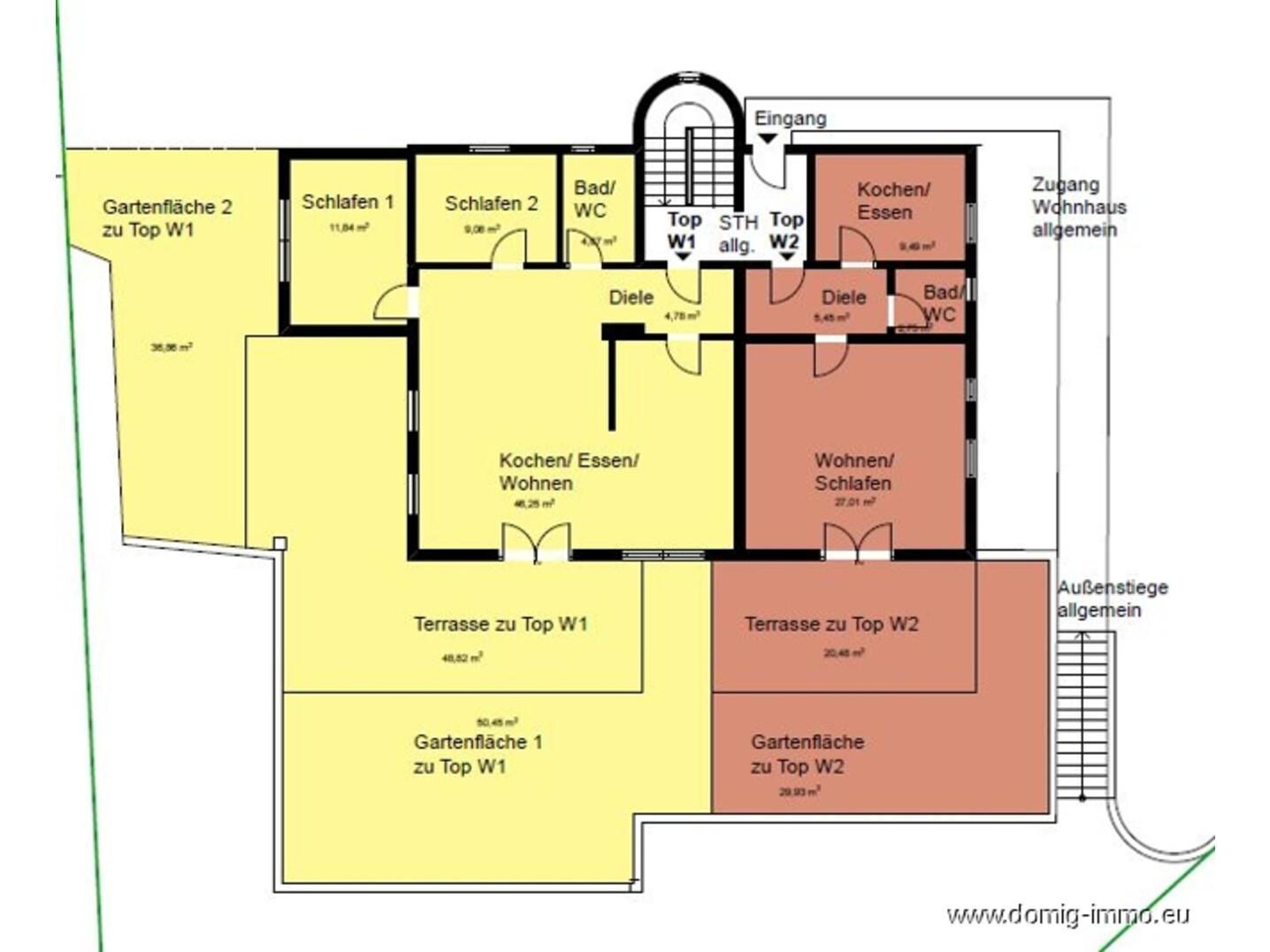
Wohnung Top 1 im Erdgeschoss: ca. 76,62 m²
Wohnung Top 2 im Erdgeschoss: ca. 44,70 m²
Wohnung Top 3 im Obergeschoss: ca. 65,93 m²
Wohnung Top 4 im Obergeschoss: ca. 54,03 m²
Wohnung Top 5 im Dachgeschoss: ca. 92,46 m²
Die Wohnungen verfügen über großzügige Balkone und Terrassen. Im Außenbereich der Anlage befindet sich zusätzlich eine große Spielwiese, die für die Bewohner frei zugänglich ist.
Eine Renditeberechnung und eine Mieteinahmen-Aufstellung werden erst nach persönlichem Kontakt übermittelt.
Eine sichere und wertstabile Geldanlage ist für Anleger und Investoren die höchste Priorität, dieses Objekt erfüllte alle dieser Faktoren.
Energieausweis (HWB-Wert) = 75 kWh/m² (C)
FINANZIERUNG:
Tel.: +43 5572/40 10 29, office@laendlefinanz.at, www.laendlefinanz.at
Ländle Finanz Raid & Partner OG , Moosmahdstraße 42, A-6850 Dornbirn
Das Gebäude ca. 1996 in Massivbauweise errichtet und verfügt im Kellergeschoss über großzügige Räume und 2 große Doppelgaragen für bis zu vier PKW's.
Kellergeschoss: ca. 130 m²
2 Doppelgaragen (4 PKW): ca. 57,20 m²
Wohnung Top 6 im Kellergeschoss: ca. 47,22 m²
Wohnung Top 1 im Erdgeschoss: ca. 76,62 m²
Wohnung Top 2 im Erdgeschoss: ca. 44,70 m²
Wohnung Top 3 im Obergeschoss: ca. 65,93 m²
Wohnung Top 4 im Obergeschoss: ca. 54,03 m²
Wohnung Top 5 im Dachgeschoss: ca. 92,46 m²
Die Wohnungen verfügen über großzügige Balkone und Terrassen. Im Außenbereich der Anlage befindet sich zusätzlich eine große Spielwiese, die für die Bewohner frei zugänglich ist.
Eine Renditeberechnung und eine Mieteinahmen-Aufstellung werden erst nach persönlichem Kontakt übermittelt.
Eine sichere und wertstabile Geldanlage ist für Anleger und Investoren die höchste Priorität, dieses Objekt erfüllte alle dieser Faktoren.
Energieausweis (HWB-Wert) = 75 kWh/m² (C)
FINANZIERUNG:
Tel.: +43 5572/40 10 29, office@laendlefinanz.at, www.laendlefinanz.at
Ländle Finanz Raid & Partner OG , Moosmahdstraße 42, A-6850 Dornbirn
Marc Domig
Ihr AnsprechpartnerMoosmahdstraße 42
6850 Dornbirn
Österreich
M: 00435572401023
marc@domig-immo.at
Objekt-Nummer |
1405 |
Objekt-Art |
Mehrfamilienhaus |
Objekt-Art |
Mehrfamilienhaus |
Nutzungsart |
Wohnen |
Vermarktungsart |
Kauf |
Einrichtung |
nach Absprache |
Kaufpreis |
auf Anfrage |
Aussen Courtage |
3,5% Grunderwerbssteuer 1,1% Grundbucheintragung 1,2% Vertragskosten 3,6% Maklerhonorar inkl. MwSt. |
Angaben zum Preis und dessen Zusammensetzung |
Auf Anfrage! |
Währung |
EUR |
Stellplätze |
- 2 Doppelgaragen für 4 PKW's
- mehrere PKW Abstellplätze im Freien |
Wohnfläche |
380,96 m² |
Grundstücksfläche |
1.000 m² |
Kellerfläche |
130,1 m² |
Baujahr |
1996 |
Zustand |
Gepflegt |
Umfang der Erschließung |
Energieausweis |
|
Gültig bis |
- |
Baujahr |
1996 |
Gebäudeart |
Wohn |
HWB-Wert |
75.00 kWh/m²a |
HWB-Klasse |
C |
FGEE-Wert |
1.05 |
FGEE-Klasse |
C |
Energieausweis |
in Arbeit |
Bad |
|
Küche |
Einbauküche |
Boden |
|
Heizungsart |
Zentralheizung |
Befeuerung |
Öl |
Ausrichtung Balkon/Terrasse |
|
Stellplatzart |
Garage, Freiplatz |
Fahrstuhl |
|
Unterkellert |
Ja |
Beschreibung |
Tolles Mehrparteienhaus (Wohnanlage) mit 6 Wohnungen, 2 großen Doppelgaragen und 1.000m² Grundstücksfläche. Die mit Blick auf das Bergpanorama des schönen Montafons gelegene Wohnanlage befindet sich in der Ferienregion Vandans. |
Angeschlossene Gastronomie |
|
Service-Leistungen |
|
Sicherheitstechnik |
|
Dachform |
|
Bauweise |
|
Ausbaustufe |
|
Energietyp |
|
Heizungsart |
Zentralheizung |
Befeuerung |
Ölheizung |
Extras |
- Kellergeschoss: ca. 130 m²
- 2 Doppelgaragen (4 PKW): ca. 57,20 m² - Wohnung Top 6 im Kellergeschoss: ca. 47,22 m² - Wohnung Top 1 im Erdgeschoss: ca. 76,62 m² - Wohnung Top 2 im Erdgeschoss: ca. 44,70 m² - Wohnung Top 3 im Obergeschoss: ca. 65,93 m² - Wohnung Top 4 im Obergeschoss: ca. 54,03 m² - Wohnung Top 5 im Dachgeschoss: ca. 92,46 m² |





































